- COLOR
- MONO

RX-S-10 キット販売のみ
ログキット価格2,150,000円 (税込 2,365,000円) (70mm)
最寄りの国際港から100㎞までの現場搬入費用を含んでいる価格です。
為替、海上運賃の変動によりキット価格が変更になる場合があります。直近の見積書をお取りくださいませ。
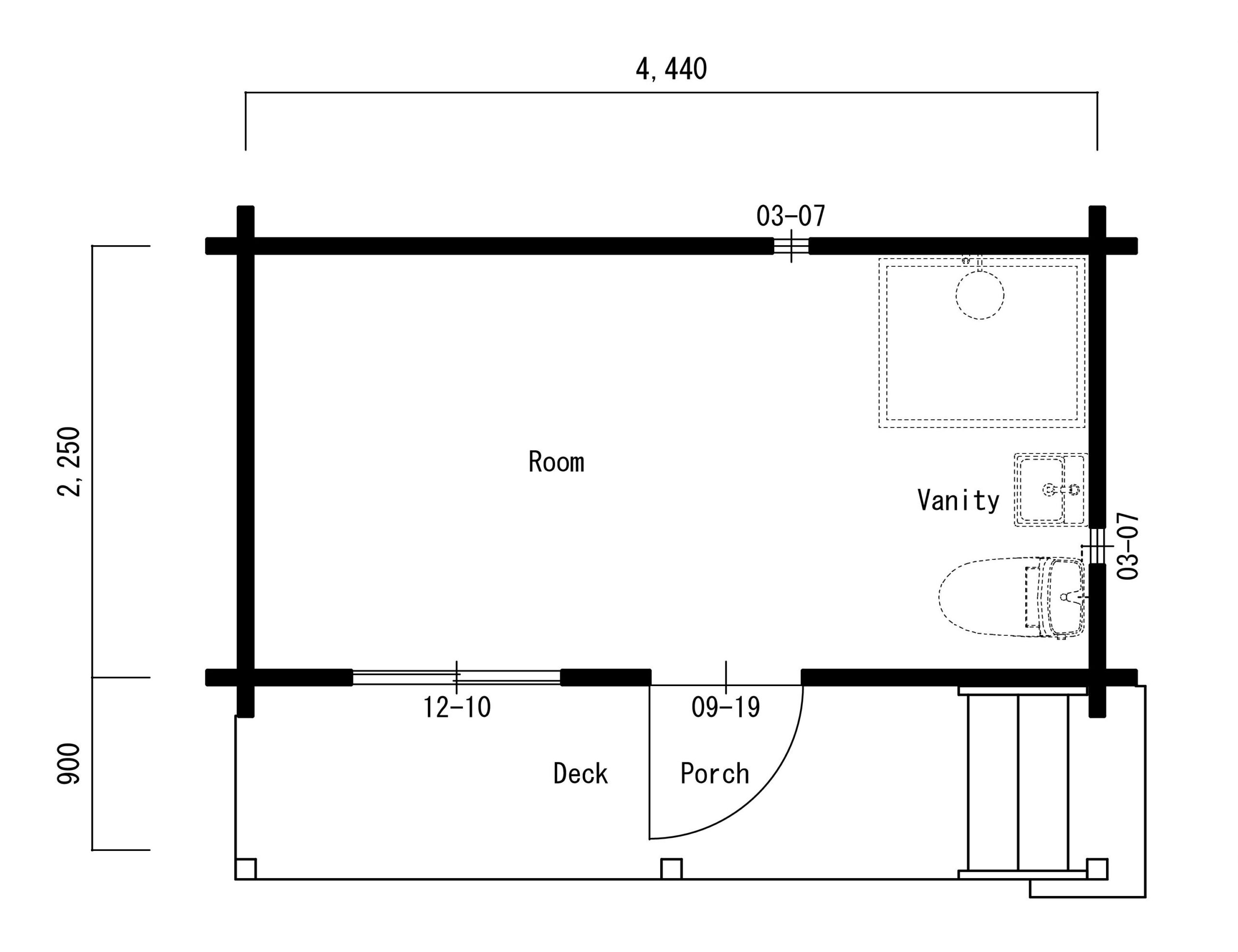
- 1階床面積9.99 ㎡
- デッキ面積4.44
- 総面積14.43 ㎡(4.36 坪)
間取り図
6畳ほどの広さのログハウスです。建築確認申請不要です。
お庭に組むことができ
大人2名で4~7日間で完成を想定しています
ゲストハウスや、リモートワークのお部屋に又
離れとして、勉強部屋やホビールームとして
大切なペット(家族)と一緒に過ごすお部屋にしたりと、
自分だけの特別な空間を過ごすお部屋にされてはいかがですか?
価格は最寄りの国際港から100㎞までの現場搬入費が含まれております。
7トンユニック車でのお届けになります(小運搬がある場合はご相談下さい)

樹脂窓、屋根材、住器が含まれています!
キット販売のみです!!
このプランは仕様の変更が出来ません
RX-LOG サウナ
RX-LOGでは「インナーサウナ」 をお奨めしております。
「家族サウナ団欒」をお奨めしております。
他人を気にすることなく、お隣のシャワー/バス ルームへすぐに移動できます。
家族で「汗浴」をお楽しみくださいませ。
プラン概要
| プランNO. | RX-S-10 キット販売のみ このプランのダイレクト問い合わせ |
|---|---|
| ログキット価格 | ログキット価格 2,150,000円 (税込 2,365,000円) |
| 1階床面積 | 9.99 ㎡ |
| デッキ面積 | 4.44 ㎡ |
| 総面積 | 14.43 ㎡(4.36坪) |
| ログについて | |
| 購入の流れ |
- ログキット価格とは・・・
- ログ部材1式の価格であり、工事費、許認可費用は含みません。
- コラボ施工価格とは・・・
- お客様とサエラホームで工事の仕分けをする手法で、一般的には内装工事、塗装工事をお客様で施工いたします。
- 完成予想価格とは ・・・
- RXログキット+工事費の合計価格です。地域によって差異が生じます。
- 新省エネ基準とは ・・・
- 新省エネ基準が適用されキット価格、工事費が改定されました。RX-LOGは省エネ基準地域、1~8地域に対応しています。
※完成予想価格は、4地域の概算価格です。※許認可費用別途申し受けます。
プランは自由に
変更できます
サエラホームのログハウスプランは、お客様のご要望や現場の状況に合わせて、柔軟に図面変更が可能です(「フリープラン」)。
サエラホームのログは木材の㎥(体積)で積算するため、間取り等の変更やフリープランでも、m³(ログの体積)単価は変わりません。
「この部屋を大きくしたい」、「この箇所をバリアフリー仕様にしたい」などなど、お気軽にご相談ください。
対応可能な変更例
外形寸法の変更
間取り変更
平面形状の変更
高さ変更
屋根形状変更
(例①)
屋根形状変更
(例②)
屋根形状変更
(例③)
屋根勾配変更
サエラホームの取り組み

地球に優しい乾燥方式
サエラホームのRX-LOGは温泉熱を使った、キルンドライ方式でCO2を発生しない乾燥方式を取っています。
つまり、RX-LOGはカーボンフリーで加工製作されている地球環境にやさしいログハウスです。

RX-LOGは全てパインログ
ラミネートに使用するボンド(糊)も日本製のコニシ(株)のホルムアルデヒドを発生しない4スター(☆☆☆☆)のボンドを使用しております。

環境に配慮した外部塗料
環境にやさしいオーガニック水性塗料をニュージーランドから輸入して供給しております。

シロアリ対策
エコボロンは「ほう酸塩鉱物」を主原料にした無機物なので自然界で分解されず、揮発・蒸発することが無く半永久的に効果を持続し人体、環境にやさしい白アリ防御剤です。(駆除剤ではありません)
ログキットのみの販売も
行っております
ログキットまたは
ログシェルのみの販売も行っております。
お問い合わせはこちら。
ログ壁・床材のみも可
ログキット価格
について
「ログキット価格」には現地搬入費用が含まれています。
お客様の所まで、当社が責任をもってお届けします。
お知らせ・・・国際海上運賃の変動によって、RX-LOG KIT価格が変動する場合がございます。直近の価格をお問合せくださいませ。
- 全国の最寄りの国際港から100km以内の現地搬入費用込み。(車上渡しです、荷下ろしクレーン等の費用は含まれておりません。)
- 勝手口ドア、テラスドア、樹脂窓、屋根材は含まれていません。
- 一部オプション部品込(木製玄関ドア、木製室内ドア、収納ドアは含まれます)
- 「ログキット価格」には住器・工事費は含まれません。
資料請求/お問い合わせ
費用のこと、間取りのことなど
お気軽にご相談ください。
お好きな方法で
お問い合わせいただけます。












