- COLOR
- MONO

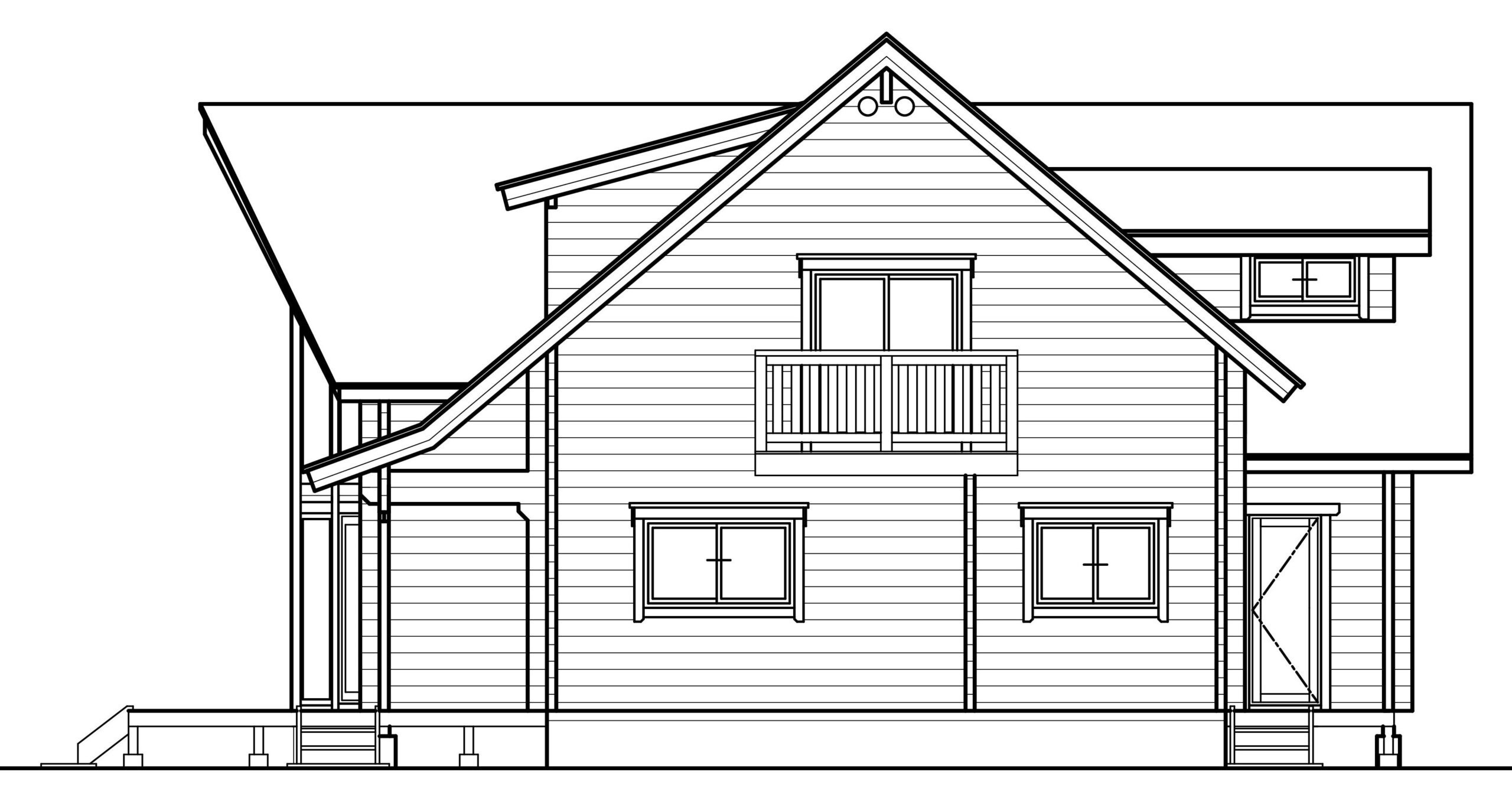
RX-TW-270
- 1階床面積114.29 ㎡
- 2階床面積98.40 ㎡
- デッキ面積52.58
- バルコニー面積5.18
- 総面積270.45 ㎡(81.81 坪)
間取り図
長年人気No-1のTWシリーズ
大家族向きのプラン!!
2世帯住宅のTW-シリーズです。
★ログキットの内容は、ページ後方の
『RX-LOG標準仕様書』をご覧ください。
問合せフォームからどうぞ
♫ サエラのログハウスプランは、お客様の要望や施工地の環境に合わせて、
間取りや高さ、屋根の形など変更OK。(一部のプランを除く)
しかもログ材の㎥(体積)で積算するので、㎥(体積)単価は変わりません。♫
●標準完成価格は、建設地域や地盤、環境により異なります。
●RX-ログキットは、ご発注から2ヶ月以内に現地搬入(標準日程)
●ログキット価格には最寄りの国際港から100kmまでの現場搬入費が含まれています。
(車上渡しです。荷下ろしクレーン等の費用は含まれておりません)
離島・沖縄県は別途追加運賃が発生いたします。
●イメージ画像は「ログキット」「樹脂窓一式」「屋根材」を組み合わせた外観です。
※参考画像のデッキ手摺はオプションになります。
RX-TW-270はCo2 70.66トン固定、一般住宅の25.98年分のCo2を固定(閉じ込めています)
RX-LOG サウナ
RX-LOGでは「インナーサウナ」 をお奨めしております。
「家族サウナ団欒」をお奨めしております。
他人を気にすることなく、お隣のシャワー/バス ルームへすぐに移動できます。
家族で「汗浴」をお楽しみくださいませ。
プラン概要
| プランNO. | RX-TW-270 このプランのダイレクト問い合わせ |
|---|---|
| 1階床面積 | 114.29 ㎡ |
| 2階床面積 | 98.40 ㎡ |
| デッキ面積 | 52.58 ㎡ |
| バルコニー面積 | 5.18 ㎡ |
| 総面積 | 270.45 ㎡(81.81坪) |
| ログについて | |
| 購入の流れ |
- キット価格・・・
- セルフビルドをお考えのお客様のログキット1式価格です。
- コラボ価格・・・
- コスト削減で、ハーフビルドをお考えのお客様とサエラホームの一般的な工事の仕分けをした、完成予定(想定)価格です。
- 完成予想価格・・・
- サエラホームが全工事を請け負い完成、お引渡し価格です。
- 新省エネ基準 ・・・
- 新省エネ基準が適用されキット価格、工事費が改定されました。RX-LOGは省エネ基準地域、1~8地域に対応しています。
※完成予想価格は、4地域の概算価格です。※許認可費用別途申し受けます。
プランは自由に
変更できます
サエラホームのログハウスプランは、お客様のご要望や現場の状況に合わせて、柔軟に図面変更が可能です(「フリープラン」)。
サエラホームのログは木材の㎥(体積)で積算するため、間取り等の変更やフリープランでも、m³(ログの体積)単価は変わりません。
「この部屋を大きくしたい」、「この箇所をバリアフリー仕様にしたい」などなど、お気軽にご相談ください。
対応可能な変更例
外形寸法の変更
間取り変更
平面形状の変更
高さ変更
屋根形状変更
(例①)
屋根形状変更
(例②)
屋根形状変更
(例③)
屋根勾配変更
サエラホームの取り組み

地球に優しい乾燥方式
サエラホームのRX-LOGは温泉熱を使った、キルンドライ方式でCO2を発生しない乾燥方式を取っています。
つまり、RX-LOGはカーボンフリーで加工製作されている地球環境にやさしいログハウスです。

RX-LOGは全てパインログ
ラミネートに使用するボンド(糊)も日本製のコニシ(株)のホルムアルデヒドを発生しない4スター(☆☆☆☆)のボンドを使用しております。

環境に配慮した外部塗料
環境にやさしいオーガニック水性塗料をニュージーランドから輸入して供給しております。

シロアリ対策
エコボロンは「ほう酸塩鉱物」を主原料にした無機物なので自然界で分解されず、揮発・蒸発することが無く半永久的に効果を持続し人体、環境にやさしい白アリ防御剤です。(駆除剤ではありません)
ログキットのみの販売も
行っております
ログキットまたは
ログシェルのみの販売も行っております。
お問い合わせはこちら。
ログ壁・床材のみも可
ログキット価格
について
「ログキット価格」には現地搬入費用が含まれています。
お客様の所まで、当社が責任をもってお届けします。
お知らせ・・・国際海上運賃の変動によって、RX-LOG KIT価格が変動する場合がございます。直近の価格をお問合せくださいませ。
- 全国の最寄りの国際港から100km以内の現地搬入費用込み。(車上渡しです、荷下ろしクレーン等の費用は含まれておりません。)
- 勝手口ドア、テラスドア、樹脂窓、屋根材は含まれていません。
- 一部オプション部品込(木製玄関ドア、木製室内ドア、収納ドアは含まれます)
- 「ログキット価格」には住器・工事費は含まれません。
資料請求/お問い合わせ
費用のこと、間取りのことなど
お気軽にご相談ください。
お好きな方法で
お問い合わせいただけます。




















