- COLOR
- MONO
NEW

RX-S-42-G(Loft)
ログキット価格5,283,000円 (税込 5,811,300円) セルフビルドをお考えのお客様のログキット一式価格です。(最寄りの国際港から100㎞までの現場搬入費用を含んでいる価格です。注:外部樹脂窓、屋根材は含まれておりません)
コラボ施工価格16,454,545円~ (税込 18,100,000円~)コスト削減で、ハーフビルドをお考えのお客様とサエラホームで、一般的な工事の仕分けをした、利用可能状態の完成予定価格です。
完成予想価格(地域による変動があります) 18,545,455円~(税込 20,400,001円~)サエラホームが全工事を請け負い、完成後のお引渡し価格です。(但し、許認可費用、浄化槽設置費用、カーテン、照明器具、宅外給排水引き込み費用等は含まれておりません。コラボ価格も同様です)
最寄りの国際港から100㎞までの現場搬入費用を含んでいる価格です。
為替、海上運賃の変動によりキット価格が変更になる場合があります。直近の見積書をお取りくださいませ。
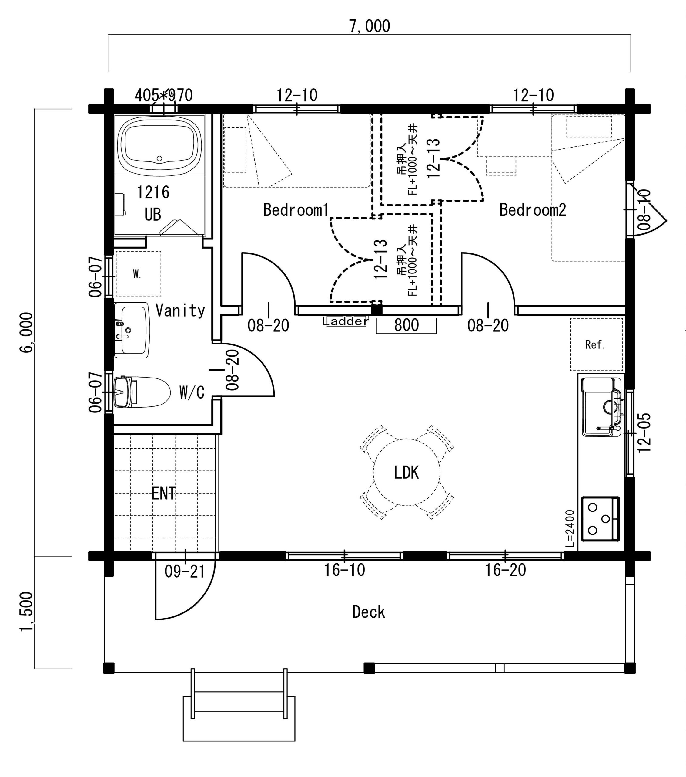
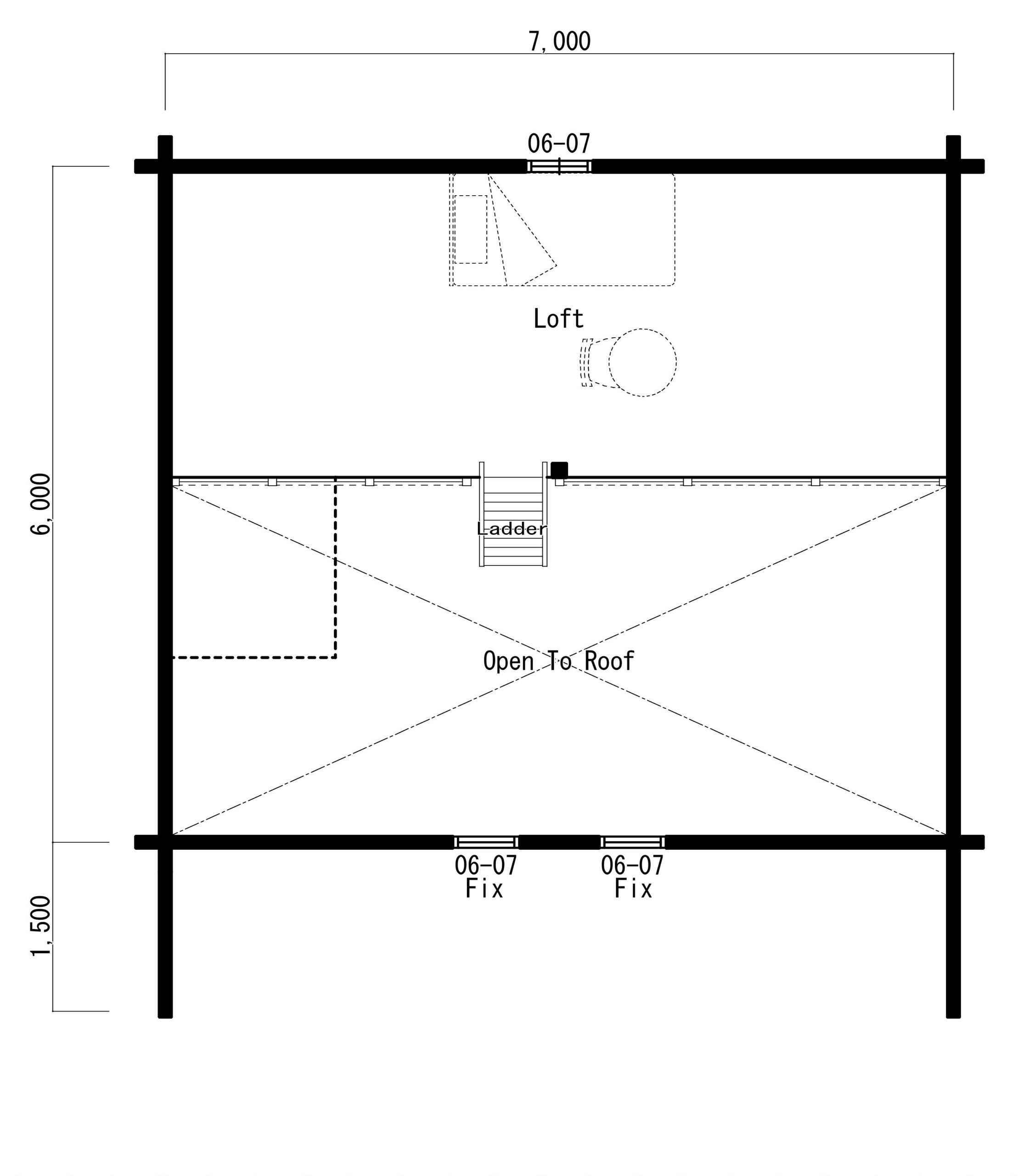
- 1階床面積42.00 ㎡
- ロフト面積18.90 ㎡
- デッキ面積9.5
- 総面積71.40 ㎡(19.59 坪)
間取り図
RX-LOG サウナ
RX-LOGでは「インナーサウナ」 をお奨めしております。
「家族サウナ団欒」をお奨めしております。
他人を気にすることなく、お隣のシャワー/バス ルームへすぐに移動できます。
家族で「汗浴」をお楽しみくださいませ。
プラン概要
| プランNO. | RX-S-42-G(Loft) このプランのダイレクト問い合わせ |
|---|---|
| ログキット価格 | ログキット価格 5,283,000円 (税込 5,811,300円) セルフビルドをお考えのお客様のログキット一式価格です。(最寄りの国際港から100㎞までの現場搬入費用を含んでいる価格です。注:外部樹脂窓、屋根材は含まれておりません) |
| ご参考 完成予想価格 | 完成予想価格(地域による変動があります) 18,545,455円~(税込 20,400,001円~) サエラホームが全工事を請け負い、完成後のお引渡し価格です。(但し、許認可費用、浄化槽設置費用、カーテン、照明器具、宅外給排水引き込み費用等は含まれておりません。コラボ価格も同様です) 但し寒冷地を除く標準地域 |
| 1階床面積 | 42.00 ㎡ |
| ロフト面積 | 18.90 ㎡ |
| デッキ面積 | 9.5 ㎡ |
| 総面積 | 71.40 ㎡(19.59坪) |
| ログについて | |
| 購入の流れ |
- キット価格・・・
- セルフビルドをお考えのお客様のログキット1式価格です。
- コラボ価格・・・
- コスト削減で、ハーフビルドをお考えのお客様とサエラホームの一般的な工事の仕分けをした、完成予定(想定)価格です。
- 完成予想価格・・・
- サエラホームが全工事を請け負い完成、お引渡し価格です。
- 新省エネ基準 ・・・
- 新省エネ基準が適用されキット価格、工事費が改定されました。RX-LOGは省エネ基準地域、1~8地域に対応しています。
※完成予想価格は、4地域の概算価格です。※許認可費用別途申し受けます。
プランは自由に
変更できます
サエラホームのログハウスプランは、お客様のご要望や現場の状況に合わせて、柔軟に図面変更が可能です(「フリープラン」)。
サエラホームのログは木材の㎥(体積)で積算するため、間取り等の変更やフリープランでも、m³(ログの体積)単価は変わりません。
「この部屋を大きくしたい」、「この箇所をバリアフリー仕様にしたい」などなど、お気軽にご相談ください。
対応可能な変更例
外形寸法の変更
間取り変更
平面形状の変更
高さ変更
屋根形状変更
(例①)
屋根形状変更
(例②)
屋根形状変更
(例③)
屋根勾配変更
サエラホームの取り組み

地球に優しい乾燥方式
サエラホームのRX-LOGは温泉熱を使った、キルンドライ方式でCO2を発生しない乾燥方式を取っています。
つまり、RX-LOGはカーボンフリーで加工製作されている地球環境にやさしいログハウスです。

RX-LOGは全てパインログ
ラミネートに使用するボンド(糊)も日本製のコニシ(株)のホルムアルデヒドを発生しない4スター(☆☆☆☆)のボンドを使用しております。

環境に配慮した外部塗料
環境にやさしいオーガニック水性塗料をニュージーランドから輸入して供給しております。

シロアリ対策
エコボロンは「ほう酸塩鉱物」を主原料にした無機物なので自然界で分解されず、揮発・蒸発することが無く半永久的に効果を持続し人体、環境にやさしい白アリ防御剤です。(駆除剤ではありません)
ログキットのみの販売も
行っております
ログキットまたは
ログシェルのみの販売も行っております。
お問い合わせはこちら。
ログ壁・床材のみも可
ログキット価格
について
「ログキット価格」には現地搬入費用が含まれています。
お客様の所まで、当社が責任をもってお届けします。
お知らせ・・・国際海上運賃の変動によって、RX-LOG KIT価格が変動する場合がございます。直近の価格をお問合せくださいませ。
- 全国の最寄りの国際港から100km以内の現地搬入費用込み。(車上渡しです、荷下ろしクレーン等の費用は含まれておりません。)
- 勝手口ドア、テラスドア、樹脂窓、屋根材は含まれていません。
- 一部オプション部品込(木製玄関ドア、木製室内ドア、収納ドアは含まれます)
- 「ログキット価格」には住器・工事費は含まれません。
資料請求/お問い合わせ
費用のこと、間取りのことなど
お気軽にご相談ください。
お好きな方法で
お問い合わせいただけます。



















